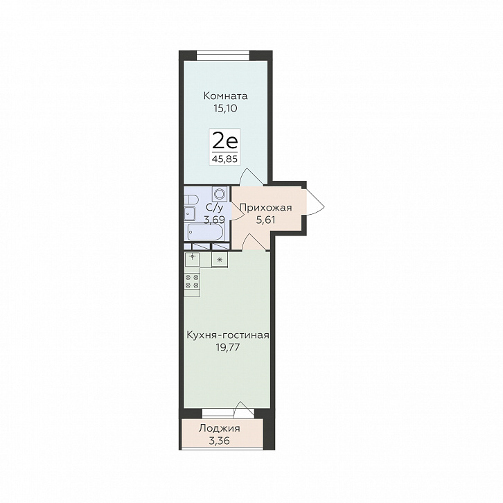
2-ком. квартира (Евро), 45.85 м2, 6 этаж, №48, Флора

Варианты отделки
Базовая отделка
Комфорт
Бизнес
Заказать
обратный звонок
Базовая отделка

Для тех, кто точно знает чего хочет! Минимум производимых работ, которые выполняет застройщик. Данный вариант позволит Вам воплотить все свои самые смелые фантазии перепланировок и дизайнерских задумок.

Плюсы полусухой стяжки:

  • Отсутствие трещин в связи с применением полипропиленового фиброволокна.
  • Минимизирует протечки воды на нижние этажи.
  • Высокая прочность

Система отопления:

  • Прокладка труб выполняется из сшитого полиэтилена. Данная система исключает трубы у каждого окна и добавляет эстетичность.
  • При аварии или замене отопительных приборов можно отключить только одну квартиру, а не весь стояк.
  • Отсутствие стояков отопления поможет установить мебель и элементы декора по своему усмотрению.
*При выборе данного вида отделки Вам самостоятельно необходимо будет проделать ряд строительно-монтажных и весь спектр отделочных работ.

  1. Качественная металлическая входная дверь
  2. Ввод электрического кабеля и установка счетчика учета электроэнергии
  3. Монтаж стояков канализации, холодного и горячего водоснабжения, устанавливаются приборы учета ХВС и ГВС
  4. Вентиляция
  5. Современная система отопления с высококачественными радиаторами
  6. Установка увеличенных окон с двухкамерным стеклопакетом
  7. Остекление балконов и лоджий высококачественным алюминиевым профилем
  8. Штукатурка по стенам и перегородкам из мелкоразмерных элементов
  9. Выполнено устройство полусухой стяжки пола в комнатах, коридоре, и сантехнических узлах
1
2
3
4
5
6
7
8
9
Комфорт

Оптимальный вариант для тех, кто хочет квартиру с первоначальным чистовым ремонтом.


  1. Качественная металлическая входная дверь
  2. Ввод электрического кабеля и установка счетчика учета электроэнергии
  3. Вентиляция
  4. Современная система отопления с высококачественными радиаторами
  5. Установка увеличенных окон с двухкамерным стеклопакетом
  6. Покрытие пола в комнатах, коридоре и кухне исполнено линолеумом светлых тонов с текстурой имитирующей дерево
  7. Установлены межкомнатные двери светлых оттенков с текстурой имитирующей дерево
  8. Смонтирован натяжной потолок
  9. Отделка поверхностей стен коридора, комнат, кухни исполнена обоями светлых тонов
  10. Установлены розетки в ванной комнате, монтируются выводы под установку приборов освещения
  11. Отделка стен в сан. узлах выполняется по стене на высоту не менее 1,5 метров от пола плиткой, выше стены покрываются краской светлых тонов
  12. Отделка пола сан. узлов выполняется плиткой светлых тонов
  13. Выполняется монтаж внутренней разводки сетей водопровода, канализации, разводка (хвс и гвс) в ванной комнате
  14. Устанавливается сантехническое оборудование: ванная, раковина, унитаз, смеситель
1
2
3
4
5
6
7
8
9
10
11
12
13
14
Бизнес

Это идеальный выбор, если Вы не планируете делать ремонт после заселения.

В такой квартире под ключ с чистовым ремонтом достаточно просто расставить мебель - всё остальное мы уже сделали за вас!


  1. Качественная металлическая входная дверь
  2. Смонтированы приборы учета электроэнергии, сделаны выводы под установку приборов освещения, смонтированы выключатели и розетки
  3. Вентиляция
  4. Современная система отопления с высококачественными радиаторами
  5. Установка увеличенных окон с двухкамерным стеклопакетом
  6. Остекление балконов и лоджий высококачественным алюминиевым профилем
  7. Напольное покрытие во всех жилых комнатах и коридорах исполняется качественным ламинатом светлых тонов с текстурой имитирующей дерево
  8. Выведен электрический провод (питание) в зоне окна под будущее размещение кондиционера
  9. Смонтированы натяжные потолки по всей квартире
  10. Поверхность стен коридора, комнат и кухни исполнена современными обоями светлых тонов
  11. Установлены качественные межкомнатные двери с фурнитурой, светлых оттенков с текстурой имитирующей дерево
  12. В сан узлах пол и стены отделаны плиткой
  13. Установлен сан фаянс в ванной комнате и туалете, так же установлены смесители
  14. Выполнен монтаж внутренней разводки сетей водопровода и канализации, стояки в ванной комнате зашиты гипсокартоном с установкой лючка ревизии, смонтирован вывод инженерных коммуникаций под стиральную машинку
1
2
3
4
5
6
7
8
9
10
11
12
13
14
Ипотека от 6%
Отправьте заявку онлайн сразу в несколько банков и сократите время оформления ипотеки
Посчитайте вашу ипотеку
Стоимость квартиры
Первоначальный взнос
Срок кредитования
СберБанк
  • Процентная ставка от 6%
  • Срок кредитования до 30 лет
  • Ежемесячный платеж 0 ₽
  • Сумма переплаты 0 ₽
Оставить заявку
Альфа-Банк
  • Процентная ставка от 5%
  • Срок кредитования до 30 лет
  • Ежемесячный платеж 0 ₽
  • Сумма переплаты 0 ₽
Оставить заявку
Дом.РФ
  • Процентная ставка от 6%
  • Срок кредитования до 30 лет
  • Ежемесячный платеж 0 ₽
  • Сумма переплаты 0 ₽
Оставить заявку
ВТБ
  • Процентная ставка 22.2%
  • Срок кредитования до 30 лет
  • Ежемесячный платеж 0 ₽
  • Сумма переплаты 0 ₽
Оставить заявку

Данный просчет является предварительным, получить более подробную информацию и оформить заявку на ипотеку можно у нашего менеджера

Другие способы покупки
Выгодная ставка
на ипотеку - 6%
Купите квартиру по уникальной ставке 6% на
весь срок кредитования!
Получить одобрение
Материнский капитал
Это помощь молодым семьям, которой они
могут улучшить условия жизни своих детей
Подробнее
Семейная ипотека
Ипотечная программа со сниженной ставкой
Подробнее
Военная ипотека
Даёт возможность военнослужащим купить собственное жильё
Подробнее
Рассрочка
Позволяет оплатить квартиру равными частями за
срок до 12 месяцев при внесении первого взноса
Подробнее
Онлайн-покупка
Приобретите квартиру в несколько
шагов не выходя из дома
Подробнее