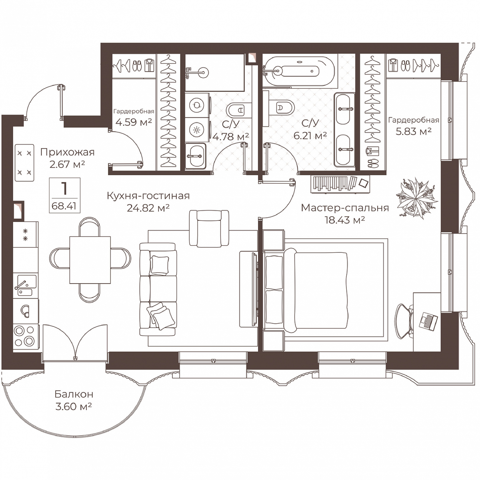
1-комнатная квартира, 68.41 м2, 3 этаж, №51, Резиденции Воронцова

Варианты отделки
Базовая отделка
Предчистовая
Комфорт
Бизнес
Заказать
обратный звонок
Базовая отделка

Для тех, кто точно знает чего хочет! Минимум производимых работ, которые выполняет застройщик. Данный вариант позволит Вам воплотить все свои самые смелые фантазии перепланировок и дизайнерских задумок.

Плюсы полусухой стяжки:

  • Отсутствие трещин в связи с применением полипропиленового фиброволокна.
  • Минимизирует протечки воды на нижние этажи.
  • Высокая прочность

Система отопления:

  • Прокладка труб выполняется из сшитого полиэтилена. Данная система исключает трубы у каждого окна и добавляет эстетичность.
  • При аварии или замене отопительных приборов можно отключить только одну квартиру, а не весь стояк.
  • Отсутствие стояков отопления поможет установить мебель и элементы декора по своему усмотрению.
*При выборе данного вида отделки Вам самостоятельно необходимо будет проделать ряд строительно-монтажных и весь спектр отделочных работ.

  1. Качественная металлическая входная дверь
  2. Ввод электрического кабеля и установка счетчика учета электроэнергии
  3. Монтаж стояков канализации, холодного и горячего водоснабжения, устанавливаются приборы учета ХВС и ГВС
  4. Вентиляция
  5. Современная система отопления с высококачественными радиаторами
  6. Установка увеличенных окон с двухкамерным стеклопакетом
  7. Остекление балконов и лоджий высококачественным алюминиевым профилем
  8. Штукатурка по стенам и перегородкам из мелкоразмерных элементов
  9. Выполнено устройство полусухой стяжки пола в комнатах, коридоре, и сантехнических узлах
1
2
3
4
5
6
7
8
9
Предчистовая
  1. Качественная металлическая входная дверь
  2. Ввод электрического кабеля и установка счетчика учета электроэнергии
  3. Монтаж стояков канализации, холодного и горячего водоснабжения, устанавливаются приборы учета ХВС и ГВС
  4. Вентиляция
  5. Современная система отопления с высококачественными радиаторами
  6. Установка увеличенных окон с двухкамерным стеклопакетом
  7. Остекление балконов и лоджий высококачественным алюминиевым профилем
  8. Штукатурка по стенам и перегородкам из мелкоразмерных элементов выполняется качественная штукатурка
  9. Выполнено устройство полусухой стяжки пола в комнатах, коридоре, и сантехнических узлах
1
2
3
4
5
6
7
8
9
Комфорт
  1. Качественная металлическая входная дверь
  2. Выполнена известковая штукатурка по стенам и перегородкам из мелкоразмерных элементов
  3. Современная система отопления с высококачественными радиаторами
  4. Оклейка стен коридора, комнат, кухни современными обоями светлых тонов
  5. Покрытие пола в комнатах, коридоре и кухне исполнено линолеумом светлых тонов с текстурой имитирующей дерево
  6. В сан.узлах пол и стены наполовину высоты стены облицованы плиткой, верхняя половина стен окрашена влагостойкой краской
  7. Смонтированы натяжные потолки по всей квартире
  8. Выполнена разводка электрики, установлены розетки и выключатели
  9. Выполнен монтаж внутренней разводки сетей водопровода и канализации
  10. Устанавливается сантехническое оборудование: раковина, унитаз, смесители
  11. Установлены увеличенные окна с двухкамерным стеклопакетом
1
2
3
4
5
6
7
8
9
10
11
Бизнес
  1. Качественная металлическая входная дверь
  2. Выполнена известковая штукатрука по стенам и перегородкам из мелкоразмерных элементов
  3. Современная система отопления с высококачественными радиаторами
  4. Поверхность стен коридора, комнат и кухни исполнена обоями под покраску
  5. Напольное покрытие во всех жилых комнатах и коридорах исполняется качественным ламинатом
  6. В сан узлах пол и стены отделаны плиткой
  7. Смонтированы натяжные потолки по всей квартире
  8. Выполнена разводка электрики, установлены розетки и выключатели
  9. Выполнен монтаж внутренней разводки сетей водопровода и канализации, смонтирован вывод инженерных коммуникаций под стиральную машинку
  10. Устанавливается сантехническое оборудование: ванна с акриловым покрытием, раковина, унитаз с системой инсталляции, смесители
  11. Установлена розетка под электрический полотенцесушитель
  12. Установлены увеличенные окна с двухкамерным стеклопакетом
1
2
3
4
5
6
7
8
9
10
11
12
Ипотека от 6%
Отправьте заявку онлайн сразу в несколько банков и сократите время оформления ипотеки
Посчитайте вашу ипотеку
Стоимость квартиры
Первоначальный взнос
Срок кредитования
СберБанк
  • Процентная ставка от 6%
  • Срок кредитования до 30 лет
  • Ежемесячный платеж 0 ₽
  • Сумма переплаты 0 ₽
Оставить заявку
Альфа-Банк
  • Процентная ставка от 5%
  • Срок кредитования до 30 лет
  • Ежемесячный платеж 0 ₽
  • Сумма переплаты 0 ₽
Оставить заявку
Дом.РФ
  • Процентная ставка от 6%
  • Срок кредитования до 30 лет
  • Ежемесячный платеж 0 ₽
  • Сумма переплаты 0 ₽
Оставить заявку
ВТБ
  • Процентная ставка 22.2%
  • Срок кредитования до 30 лет
  • Ежемесячный платеж 0 ₽
  • Сумма переплаты 0 ₽
Оставить заявку

Данный просчет является предварительным, получить более подробную информацию и оформить заявку на ипотеку можно у нашего менеджера

Другие способы покупки
Выгодная ставка
на ипотеку - 6%
Купите квартиру по уникальной ставке 6% на
весь срок кредитования!
Получить одобрение
Материнский капитал
Это помощь молодым семьям, которой они
могут улучшить условия жизни своих детей
Подробнее
Семейная ипотека
Ипотечная программа со сниженной ставкой
Подробнее
Военная ипотека
Даёт возможность военнослужащим купить собственное жильё
Подробнее
Рассрочка
Позволяет оплатить квартиру равными частями за
срок до 12 месяцев при внесении первого взноса
Подробнее
Онлайн-покупка
Приобретите квартиру в несколько
шагов не выходя из дома
Подробнее